c o n c o r s i
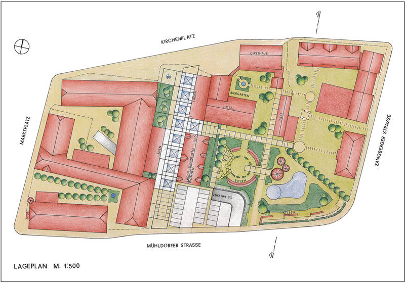
Ampfing, Germania1997Comune di AmpfingSistemazione di un’ area del centrocittadino con la creazione di residenze,negozi, parcheggi e parco pubblico.